Продава Тристаен апартамент гр.София - Малинова долина 137501 EUR

РубрикаПродава
Вид на имотаТристаен апартамент
Квартал Малинова долина
Населено мястогр.София
Област:София
ДържаваBulgaria - BG
Цена / Валута
137501 EUR
Площ107
Етаж3
Етажност4
Описание:

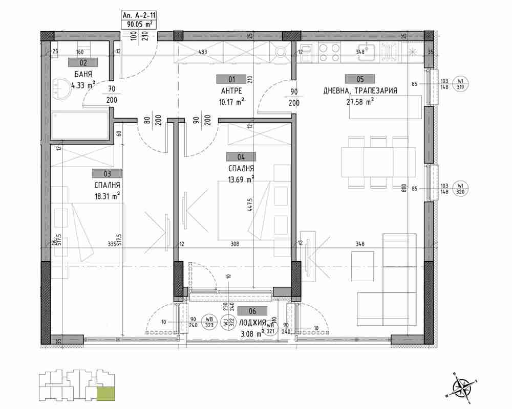
Апартаментът се намира в новоизграждащ се модерен жилищен комплекс. Състои се от антре, дневна с трапезария, две спални, баня с тоалетна и лоджия с изглед към Витоша. Жилищният комплекс се състои от две жилищни сгради – „Плиска“ и „Преслав“ и се отличава с комуникативна локация, модерна архитектура, оптимално разпределени площи и висока енергийна ефективност. Разполага с детска площадка и зеленина. Освен висококачествената топлоизолация, ще бъдат изградени и соларни инсталации с цел минимизиране на експлотационните разходи на сградите. В комплексът има свободни двустайни и тристайни апаратаменти, прилежащи озеленени площи на партер ниво, гаражи и паркоместа с подземно паркиране. Цените са изключително конкурентни и започват от 1100 евро на квадратен метър. Предлагат се различни гъвкави схеми на плащане. Без комисиона за купувача! Свържете се с нас за повече информация: Имаш право ООД,  0889 808 371; 0878 885 640  imashpravo@outlook.com Имаш право ООД осигурява безплатно професионално съдействие за банково кредитиране. Компанията ни има сключени договори с основните банки, което ни позволява да предлагаме на нашите клиенти най-изгодните за тях оферти.
Номер на офертата1014402
Дата на посл. промянаWed Jun 04 2025
Брой посетители2500
За контакти: Фирма: ИМАШ ПРАВО ООД
Държава: Bulgaria
Населено място: гр.София
Адрес: ул. Позитано 14
Телефони за контакт: 0878885640
E-mail: imashpravo@outlook.com

https://imashpravo.portalre.net